Skip to main content Skip to navigation

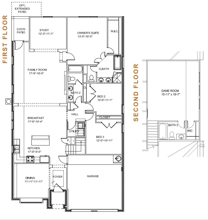
Elise 2012HCGR

3 BR | 3 BA | 2,454 sqft.

Starting from the high $300s

Floor Plan

Happy with your experience?

Please take a moment to leave us a review. Your responses will help us serve you and others better in the future.

Purchaser's Name(Required)
MM slash DD slash YYYY